2025年09月25日貸家 新潟市北区松浜東町1 3LⅮK 75,000円
2025年09月25日貸家 新潟市北区松浜東町1 3LⅮK 75,000円
| 貸 家 | コンド―ハウスB棟 |
|---|---|
| 所在地 | 新潟市北区松浜東町1-3-58-2 |
| 家 賃 | 75,000円 |
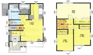
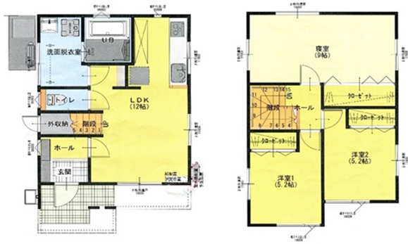
| 間取り | 3LⅮK(洋9、洋5.2、洋5.2、LDK12) |
| 構 造 | 木造ガルバリューム鋼板葺2階建 |
| 築 年 | 平成29年7月 |
| 設 備 | 上水道/公共下水/ エコキュート エアコン2台付 |
| 駐車場 | 有り 3台 |
| 学校区 | 松浜小学校、松浜中学校 |
| 住環境 | ウオロク松浜店、コメリ松浜店、キューピット松浜店、松浜郵便局 アオキ松浜店 |
| 初期費用 | 敷金75,000円、礼金75,000円、保証料等59,290円、 |
| 家財保険 | 当初2年分15,800円 |
| 仲介手数料 | 82,500円(消費税込) |
| 町内費 | 実費(670円) |
| 入 居 | 即時 |


















